服务热线
13363905797






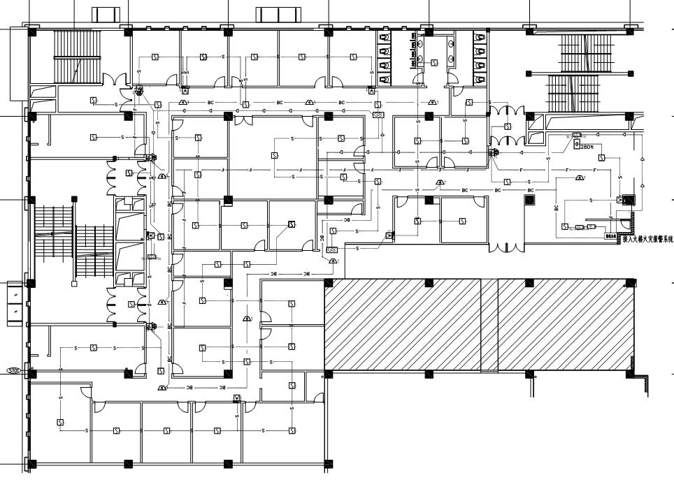
二次消防改造:消防设计、消防审图、消防设计备案、消防施工、检测、办理验收许可证、消防安全检查合格证等全套服务!
1.喷淋系统改造
2.火灾报警系统改造
3.应急照明及疏散指示系统改造
4.消火栓系统改造
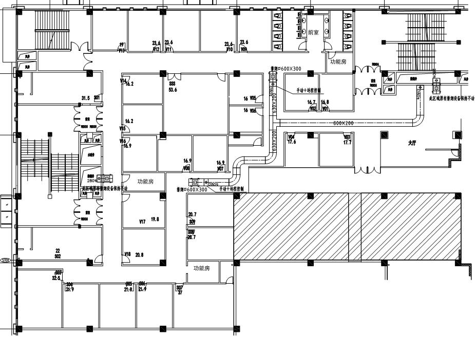
5.通风防排烟系统改造
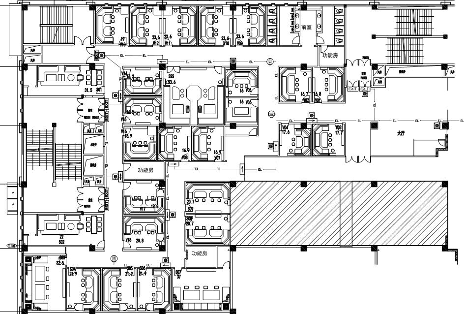
我司负责的相关服务项目:
1.消防设计出图及办理图审、备案手续服务
2.消防竣工验收手续等服务。
人气:824
请必须填写正确信息,以便我们更好的为您服务!